









Chisinau, Barabant
373.000€
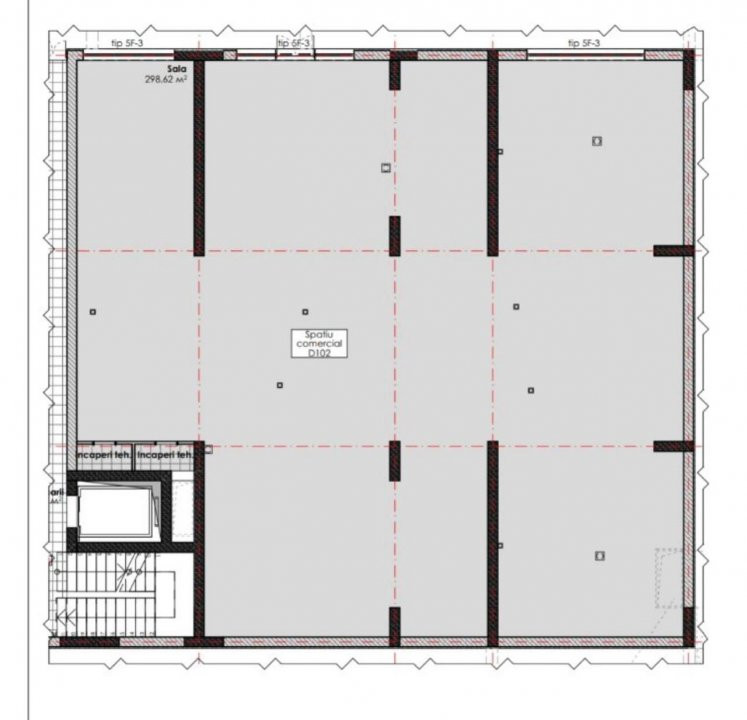
Suprafata construita
298 mp
- ID:102627670
- S. construita:298.00 mp
- Nr. bai:1
- Regim inaltime:P+7
Descriere
Se oferă spre vânzare un spațiu comercial, amplasat în cadrul Complexului Colina Residence, o zonă rezidențială modernă, aflată în plină dezvoltare.
Potrivit pentru birouri, cabinet medical, fitnes centru, showroom, studio, centru educațional sau diverse activități comerciale.
Caracteristici principale:
-- Suprafață totală: 298,6 m²
-- Posibilitate de compartimentare în două spații separate, fiecare cu acces individual
-- Înălțimea tavanelor: 3,3 m
-- Putere electrică disponibilă: 35 kW
Dotări și avantaje:
-- Conectat la toate comunicațiile
-- Locuri de parcare disponibile în exterior
Spațiul reprezintă o investiție excelentă într-o zonă cu potențial comercial în continuă creștere.
Citeste mai mult
Potrivit pentru birouri, cabinet medical, fitnes centru, showroom, studio, centru educațional sau diverse activități comerciale.
Caracteristici principale:
-- Suprafață totală: 298,6 m²
-- Posibilitate de compartimentare în două spații separate, fiecare cu acces individual
-- Înălțimea tavanelor: 3,3 m
-- Putere electrică disponibilă: 35 kW
Dotări și avantaje:
-- Conectat la toate comunicațiile
-- Locuri de parcare disponibile în exterior
Spațiul reprezintă o investiție excelentă într-o zonă cu potențial comercial în continuă creștere.
Specificatii
Racu Vadim
+37362148481
Esti interesat de aceasta proprietate ?