






Chisinau, Cetate
561.500€
- ID:102993094
- Nr. bai:2
- Regim inaltime:P
Descriere
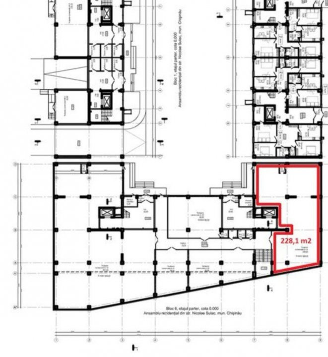
Vânzare spațiu comercial – Ecocity Residence
Se oferă spre vânzare un spațiu comercial la parterul blocului locativ Ecocity Residence, dat în exploatare, cu 3 intrări separate, ideal pentru diverse activități comerciale sau de servicii.
Avantaje ale spațiului:
Parcare pentru clienți chiar în fața spațiului, facilitând accesul rapid;
Amplasare excelentă pe str. Milescu Spătaru, cu vizibilitate ridicată pentru trecători și trafic auto;
Flux constant de clienți datorită proximității cu companii-ancora, precum Fish-Market și viitorul Supermarket Nr.1;
Flexibilitate în amenajare, cu posibilitatea de divizare în 3 încăperi separate, potrivită pentru mai multe activități simultane.
Acest spațiu reprezintă o oportunitate excelentă de investiție, atât pentru afaceri noi, cât și pentru extinderea celor existente.
Citeste mai mult
Se oferă spre vânzare un spațiu comercial la parterul blocului locativ Ecocity Residence, dat în exploatare, cu 3 intrări separate, ideal pentru diverse activități comerciale sau de servicii.
Avantaje ale spațiului:
Parcare pentru clienți chiar în fața spațiului, facilitând accesul rapid;
Amplasare excelentă pe str. Milescu Spătaru, cu vizibilitate ridicată pentru trecători și trafic auto;
Flux constant de clienți datorită proximității cu companii-ancora, precum Fish-Market și viitorul Supermarket Nr.1;
Flexibilitate în amenajare, cu posibilitatea de divizare în 3 încăperi separate, potrivită pentru mai multe activități simultane.
Acest spațiu reprezintă o oportunitate excelentă de investiție, atât pentru afaceri noi, cât și pentru extinderea celor existente.
Specificatii
Curent
Apa
Canalizare
Gaz
Romanescu Victor
+37378500102
Esti interesat de aceasta proprietate ?