





















Durlesti
340.000€
Suprafata construita
230.50 mp
- ID:P18264
- Nr. camere:4
- S. construita:230.50 mp
- Nr. bucatarii:1
- Regim inaltime:P+2
Descriere
Se vinde casă în Poiana Domnească, Durlesti pe str. Emil Loteanu.
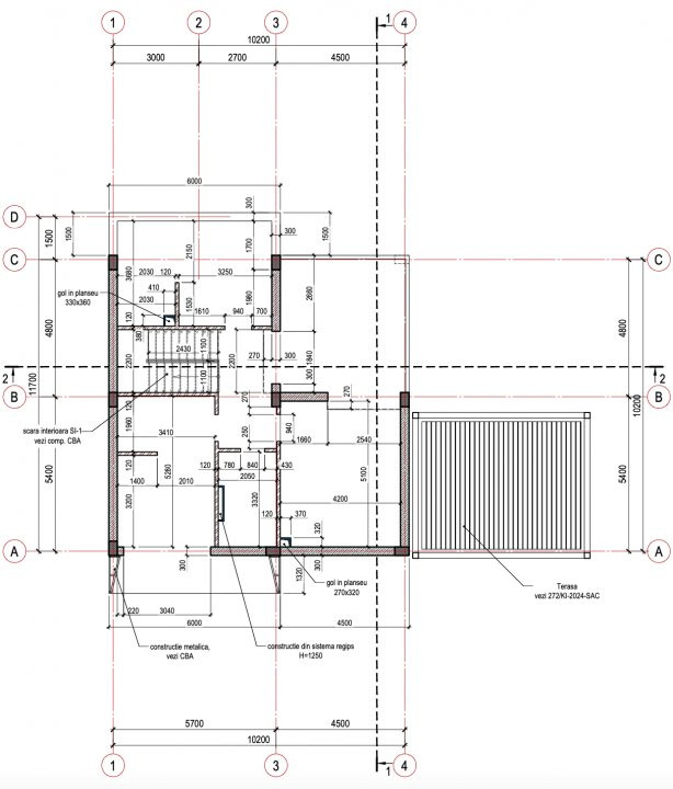
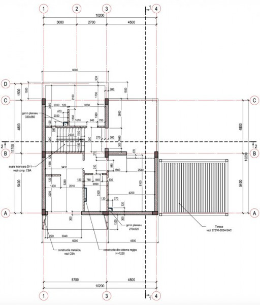
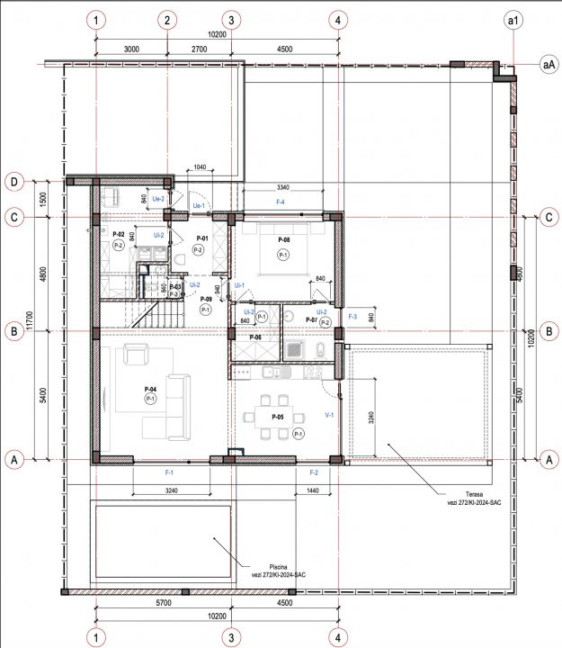
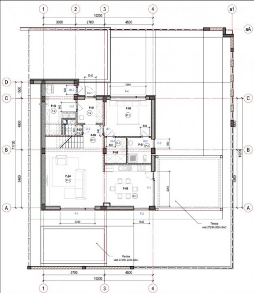
Suprafața totală: 230 mp
Suprafața terenului: 4.2 ari.
Compartimentare în 2 Nivele:
Parter - antreu, încăpere tehnică, wc, living, bucătărie comasată cu sufragerie, garderobă, bloc sanitar, dormitor matrimonial, hol, terasă;
1 nivel - hol, 3 dormitoare, 2 garderobe, bloc sanitar.
Caracteristici:
- variantă albă;
- geamuri Veka 7 camere în 3 rânduri;
- pereții exteriori din cărămidă roșie tip porothem;
- conectat la toate rețelele;
- fațadă ventilată;
- izolată cu vată minerală
- conectata la toate comunicatiile.
În apropiere: pădure, vecinii locuiesc, traseu asfaltat.
Acces la transport public.
Citeste mai mult
Suprafața totală: 230 mp
Suprafața terenului: 4.2 ari.
Compartimentare în 2 Nivele:
Parter - antreu, încăpere tehnică, wc, living, bucătărie comasată cu sufragerie, garderobă, bloc sanitar, dormitor matrimonial, hol, terasă;
1 nivel - hol, 3 dormitoare, 2 garderobe, bloc sanitar.
Caracteristici:
- variantă albă;
- geamuri Veka 7 camere în 3 rânduri;
- pereții exteriori din cărămidă roșie tip porothem;
- conectat la toate rețelele;
- fațadă ventilată;
- izolată cu vată minerală
- conectata la toate comunicatiile.
În apropiere: pădure, vecinii locuiesc, traseu asfaltat.
Acces la transport public.
Specificatii
Curent
Apa
Canalizare
Gaz
Prigala Radu
+37379500506
Esti interesat de aceasta proprietate ?