




Cojusna, Zimbru
140.000€
Suprafata construita
170 mp
Bai
4
- ID:P16159
- Nr. camere:4
- S. construita:170.00 mp
- Nr. bucatarii:1
- Nr. bai:4
- Nr. balcoane:1
- Nr. parcari:2
- Regim inaltime:P+2
Descriere
Spre vânzare Townhouse situat în Cojușna.
Suprafața totală de 170m2, parcare subterană și debara.
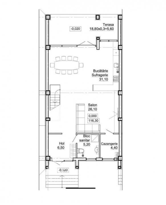
Compartimentare:
Nivelul 1: living, bucătărie cu sufragerie, bloc sanitar, antreu, cazangerie.
Nivelul 2: 3 dormitoare, 2 blocuri sanitare, garderobă, terasă.
Nivelul 3: bloc sanitar, 2 terase.
- încălzire autonomă;
- încălzire în pardosea;
- geamuri panoramice;
- curte de tip închis.
Citeste mai mult
Suprafața totală de 170m2, parcare subterană și debara.
Compartimentare:
Nivelul 1: living, bucătărie cu sufragerie, bloc sanitar, antreu, cazangerie.
Nivelul 2: 3 dormitoare, 2 blocuri sanitare, garderobă, terasă.
Nivelul 3: bloc sanitar, 2 terase.
- încălzire autonomă;
- încălzire în pardosea;
- geamuri panoramice;
- curte de tip închis.
Specificatii
Curent
Apa
Canalizare
Gaz
Vovc Dionis
+37378500113
Esti interesat de aceasta proprietate ?