















Chisinau, Industriala
315.000€
Suprafata construita
230 mp
- ID:P13717
- Nr. camere:3
- S. construita:230.00 mp
- Structura rezistenta:Caramida
- Regim inaltime:P+2
Descriere
Townhouse cu două nivele și terasă în orășelul Durlești, lângă pădure!
Are o suprafață totală de 230 de metri pătrați și este compartimentat în felul următor:
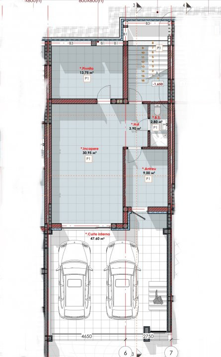
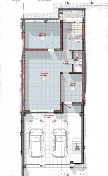
La nivelul 0 - găsim un antreu, un beci, o zonă de odihnă, un garaj pentru 2-4 mașini și un bloc sanitar;
Pe primul nivel, avem un alt antreu, un alt bloc sanitar cu cazangerie, o bucătărie cu living, o terasă mică în spate pentru grătar și o terasă mare în față cu vedere spre pădure;
La nivelul al doilea, sunt trei dormitoare confortabile, 2 balcoane, 2 blocuri sanitare și o garderobă.
Proprietatea beneficiază de fonoizolare între townhouse-uri și tavane cu o înălțime de 3 metri.
Interiorul este finisat în variantă albă, oferindu-vă libertatea de a decora spațiul conform preferințelor dvs.
Fațada este termoizolată cu un strat de 15 cm, asigurând confort termic în orice sezon.
Geamurile sunt panoramice și aduc multă lumină naturală în interior, creând o atmosferă luminoasă și plăcută.
Pentru mai multe informații sau pentru a programa o vizionare, sunați la numărul de telefon indicat în anunț.
Citeste mai mult
Are o suprafață totală de 230 de metri pătrați și este compartimentat în felul următor:
La nivelul 0 - găsim un antreu, un beci, o zonă de odihnă, un garaj pentru 2-4 mașini și un bloc sanitar;
Pe primul nivel, avem un alt antreu, un alt bloc sanitar cu cazangerie, o bucătărie cu living, o terasă mică în spate pentru grătar și o terasă mare în față cu vedere spre pădure;
La nivelul al doilea, sunt trei dormitoare confortabile, 2 balcoane, 2 blocuri sanitare și o garderobă.
Proprietatea beneficiază de fonoizolare între townhouse-uri și tavane cu o înălțime de 3 metri.
Interiorul este finisat în variantă albă, oferindu-vă libertatea de a decora spațiul conform preferințelor dvs.
Fațada este termoizolată cu un strat de 15 cm, asigurând confort termic în orice sezon.
Geamurile sunt panoramice și aduc multă lumină naturală în interior, creând o atmosferă luminoasă și plăcută.
Pentru mai multe informații sau pentru a programa o vizionare, sunați la numărul de telefon indicat în anunț.
Specificatii
Curent
Apa
Canalizare
Gaz
Centrala proprie
Pivnita
Dressing
WC Serviciu
Bișir Alexandr
+37369180313
Esti interesat de aceasta proprietate ?