












Chisinau
265.000€
Suprafata construita
164 mp
Bai
3
An constructie
2024
- ID:P15886
- Nr. camere:4
- S. construita:164.00 mp
- S. teren:1.00 ari
- Nr. bucatarii:1
- Nr. bai:3
- Nr. balcoane:1
- Nr. parcari:1
- An constructie:2024
- Regim inaltime:P+3
Descriere
Vă invităm să descoperiți această elegantă proprietate tip townhouse, situată vizavi de parcul Valea Morilor, zona Ciocârliei!
Caracteristici principale:
Suprafața totală: 164 mp
Suprafața terenului: 1 ar.
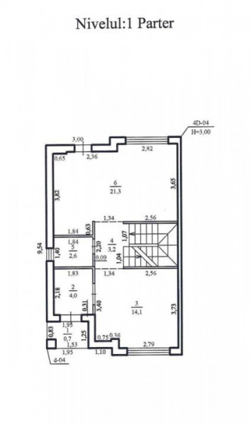
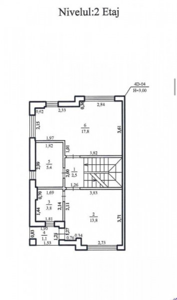
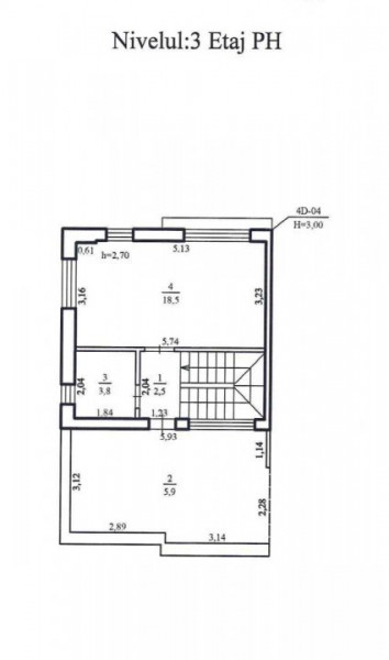
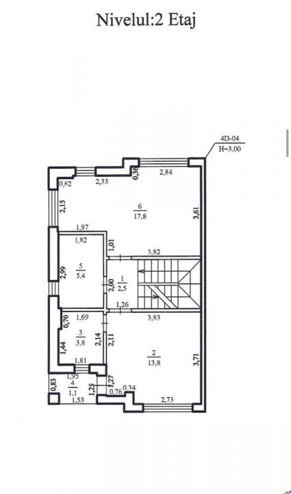
Compartimentare pe nivele:
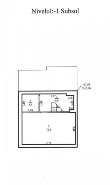
Parter: cameră tehnică și beci;
Etajul 1: antreu generos, living luminos, bucătărie, baie și acces către curtea din spate;
Etajul 2: două dormitoare confortabile, baie spațioasă, balcon pentru relaxare;
Etajul 3: o cameră, baie, terasă spațioasă cu priveliște frumoasă spre împrejurimi.
Caracteristici detaliate:
Construcție solidă din piatră de călcar;
Izolație termică avansată cu vată minerală;
Ferestre termopan de înaltă calitate, panoramice;
Loc de parcare privat inclus în prețul de vânzare;
Imobilul este dat în exploatare.
Nu ratați ocazia de a vă transforma visul în realitate și de a vă stabili într-o locație privilegiată din Chișinău!
Pentru mai multe informații și pentru a programa o vizionare, nu ezitați să ne contactați!
Citeste mai mult
Caracteristici principale:
Suprafața totală: 164 mp
Suprafața terenului: 1 ar.
Compartimentare pe nivele:
Parter: cameră tehnică și beci;
Etajul 1: antreu generos, living luminos, bucătărie, baie și acces către curtea din spate;
Etajul 2: două dormitoare confortabile, baie spațioasă, balcon pentru relaxare;
Etajul 3: o cameră, baie, terasă spațioasă cu priveliște frumoasă spre împrejurimi.
Caracteristici detaliate:
Construcție solidă din piatră de călcar;
Izolație termică avansată cu vată minerală;
Ferestre termopan de înaltă calitate, panoramice;
Loc de parcare privat inclus în prețul de vânzare;
Imobilul este dat în exploatare.
Nu ratați ocazia de a vă transforma visul în realitate și de a vă stabili într-o locație privilegiată din Chișinău!
Pentru mai multe informații și pentru a programa o vizionare, nu ezitați să ne contactați!
Specificatii
Curent
Apa
Canalizare
Gaz
CATV
Acces internet
Centrala proprie
Calorifere
Exterior
Finisat
Metal
Apometre
Contor caldura
Contor gaz
Curte
Guțan Vladlen
+37378500057
Esti interesat de aceasta proprietate ?