





Chisinau, Exterior Sud
92.475€
Suprafata construita
68.50 mp
Etaj
Etaj 7
Bai
2
- ID:P19464
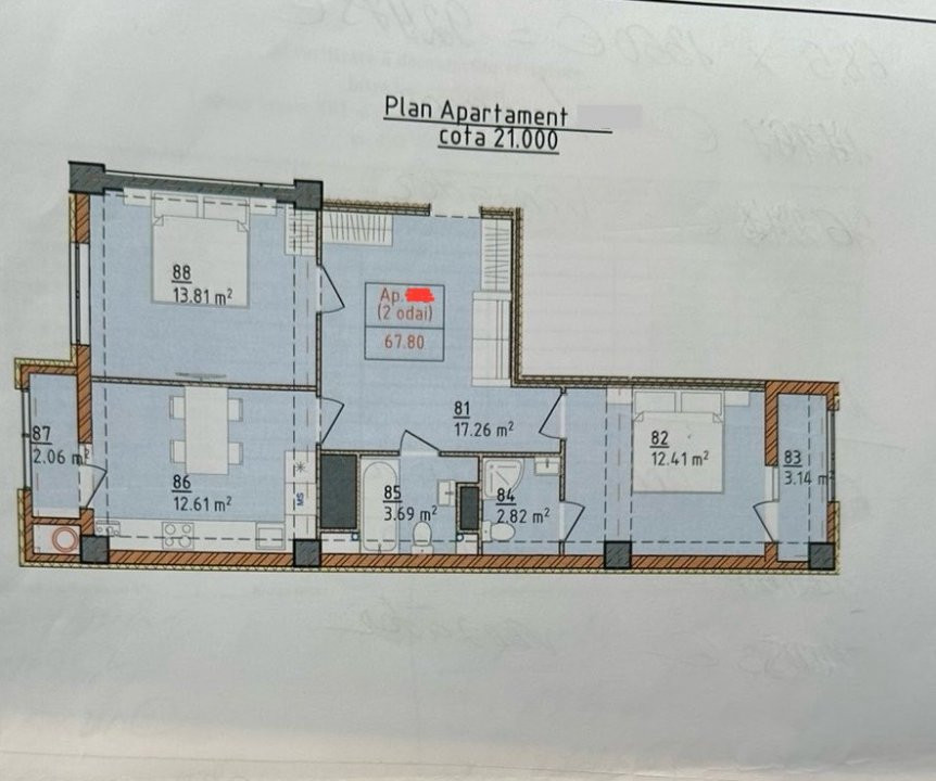
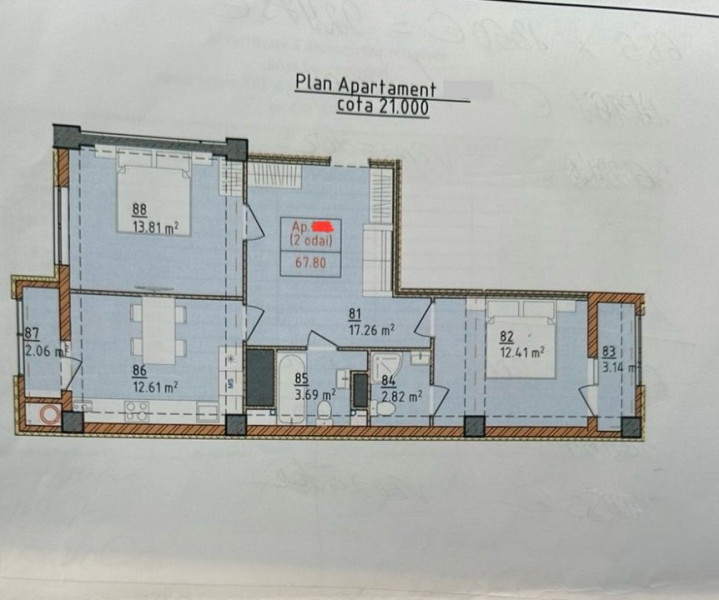
- Nr. camere:2
- S. construita:68.50 mp
- Etaj:Etaj 7
- Nr. bucatarii:1
- Nr. bai:2
- Nr. balcoane:2
- Structura:Caramida
- Regim inaltime:P+9
Descriere
De vânzare apartament cu 2 camere + living în Cartierul Cluj ( prima etapă ).
Suprafață totală: 68,50 m²
Compartimentare: 2 dormitoare, bucătărie, living, 2 balcoane și 2 blocuri sanitare.
Caracteristici:
• variantă albă;
• bilateral;
• poziționare de mijloc;
• orientare pe partea solară;
• cartier cu infrastructură COMPLETĂ: vor fi construite 3 grădinițe noi și o școală de capacitate înaltă;
• infrastructură la câțiva pași: centre comerciale, magazine alimentare, farmacii, saloane de frumusețe, săli de sport, cafenele și restaurante;
• PARCĂRILE SUBTERANE vor acoperi aproximativ 70% din apartamentele complexului.
Acces rapid la transportul public.
ATENȚIE! Apartamentul poate fi procurat și prin credit ipotecar.
Citeste mai mult
Suprafață totală: 68,50 m²
Compartimentare: 2 dormitoare, bucătărie, living, 2 balcoane și 2 blocuri sanitare.
Caracteristici:
• variantă albă;
• bilateral;
• poziționare de mijloc;
• orientare pe partea solară;
• cartier cu infrastructură COMPLETĂ: vor fi construite 3 grădinițe noi și o școală de capacitate înaltă;
• infrastructură la câțiva pași: centre comerciale, magazine alimentare, farmacii, saloane de frumusețe, săli de sport, cafenele și restaurante;
• PARCĂRILE SUBTERANE vor acoperi aproximativ 70% din apartamentele complexului.
Acces rapid la transportul public.
ATENȚIE! Apartamentul poate fi procurat și prin credit ipotecar.
Specificatii
Curent
Apa
Canalizare
Gaz
Centrala proprie
Ovăs Cristian
+37379500663
Esti interesat de aceasta proprietate ?