








Chisinau, Barabant
125.000€
Suprafata construita
85 mp
Etaj
Etaj 9
Bai
2
- ID:P16265
- Nr. camere:3
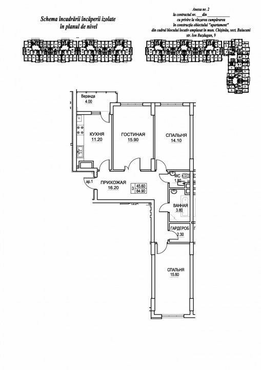
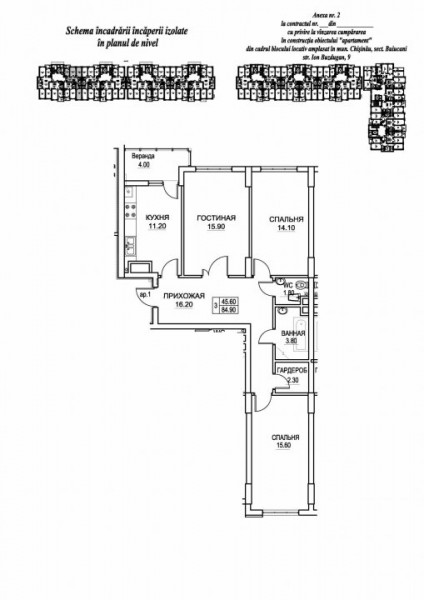
- S. construita:85.00 mp
- Etaj:Etaj 9
- Nr. bucatarii:1
- Nr. bai:2
- Nr. balcoane:1
- Structura:Caramida
- Regim inaltime:P+9
Descriere
Spre vânzare apartament în Complexul locativ Ion Buzdugan, construit de compania Exfactor, sectorul Buiucani, strada Ion Buzdugan 9.
Zona accesibilă în apropiere de școli, grădinițe, parcuri, dar și ferită de aglomerația orașului.
Complex modern, cu parcare subterană, zonă de odihnă, teren de joacă și cele necesare în jur.
Detalii apartament:
* suprafața de 85 m2;
* etaj 9 din 9;
* compartimentare: 3 camere, bucătărie, 2 blocuri sanitare, antreu, garderobă, balcon
Citeste mai mult
Zona accesibilă în apropiere de școli, grădinițe, parcuri, dar și ferită de aglomerația orașului.
Complex modern, cu parcare subterană, zonă de odihnă, teren de joacă și cele necesare în jur.
Detalii apartament:
* suprafața de 85 m2;
* etaj 9 din 9;
* compartimentare: 3 camere, bucătărie, 2 blocuri sanitare, antreu, garderobă, balcon
Specificatii
Curent
Apa
Canalizare
Gaz
CATV
Fibra optica
Centrala proprie
Midrigan Alexei
+37379500443
Esti interesat de aceasta proprietate ?