









Brasov
82.620€ + TVA
Suprafata construita
65 mp
Etaj
Mansarda
Bai
1
- ID:P17489
- Nr. camere:2
- S. construita:65.00 mp
- Etaj:Mansarda
- Nr. bucatarii:1
- Nr. bai:1
- Regim inaltime:P+4
Descriere
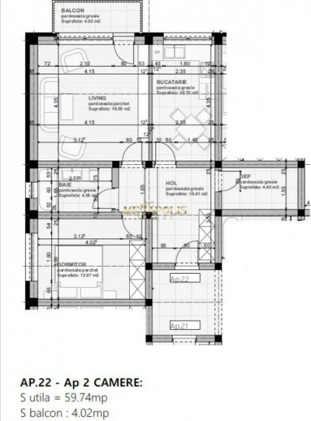
Vă propunem spre vanzare acest apartament cu 2 camere, structura decomandata, în comuna Sanpetru. Cu suprafața utila 59.74 mp, terasa 4.02 mp
Apartament 2 camere, 60 mp, mansarda
Pretul este pentru plata integrală dar există și posibilitate de plata în tranșe (flexibile) și credit bancar.
Compartimentat în: 1 dormitor, bucătărie, bloc sanitar, terasă, hol, debara.
Detalii generale:
-Predare mai 2026/ Credit Ipotecar
-constructie caramida.
-finisaje incluse in pret ( gresie,faianta,parchet etc.) Posibilitate personalizare locuinta.
-centrala termica proprie.
-izolatie exterioara polisteren 10cm.
-incalzire in pardoseala.
-geamuri 2 foi sticla.
-loc de parcare 2500euro
Complexul beneficiaza de statie RATBV , Farmacii, Markete,Frizerii , Spatii Comerciale etc.
Pentru detalii cat si pentru a programa o vizionare nu ezitati sa ne contactati.
Citeste mai mult
Apartament 2 camere, 60 mp, mansarda
Pretul este pentru plata integrală dar există și posibilitate de plata în tranșe (flexibile) și credit bancar.
Compartimentat în: 1 dormitor, bucătărie, bloc sanitar, terasă, hol, debara.
Detalii generale:
-Predare mai 2026/ Credit Ipotecar
-constructie caramida.
-finisaje incluse in pret ( gresie,faianta,parchet etc.) Posibilitate personalizare locuinta.
-centrala termica proprie.
-izolatie exterioara polisteren 10cm.
-incalzire in pardoseala.
-geamuri 2 foi sticla.
-loc de parcare 2500euro
Complexul beneficiaza de statie RATBV , Farmacii, Markete,Frizerii , Spatii Comerciale etc.
Pentru detalii cat si pentru a programa o vizionare nu ezitati sa ne contactati.
Specificatii
Curent
Apa
Canalizare
Gaz
Centrala proprie
Finisat
PVC
Jelipu Mariana
+37378500331
Esti interesat de aceasta proprietate ?